ID CP3031700

Apartament Spațios de 120 mp în Cartierul Evreiesc – Ultracentral

ID CP3031700

1,350 €

Apartament cu 5 camere de închiriat
Universitate, Bucuresti
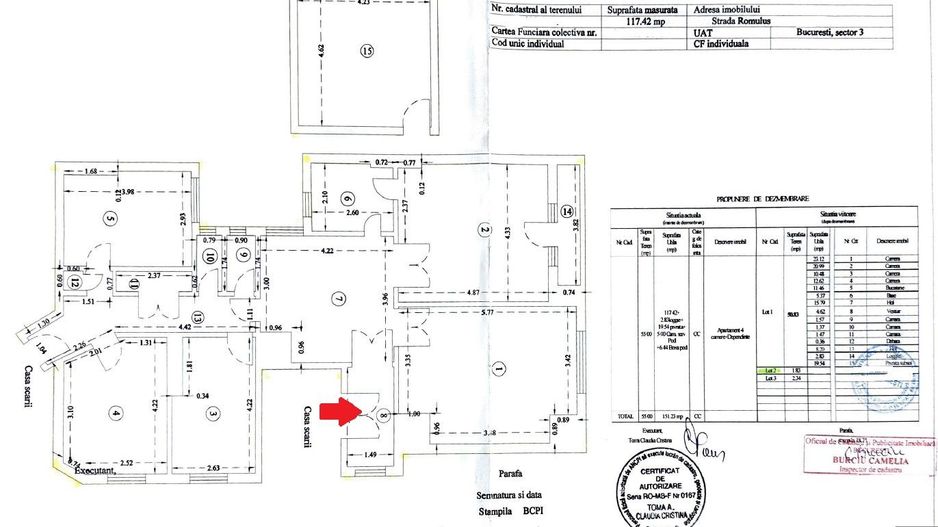
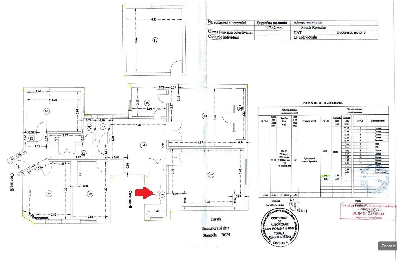
117.42 mp
1940

Agentia Zoom City are placerea de a va prezenta disponibil pentru inchiriere un apartament luminos si spatios de 120 mp, situat Ultracentral, in apropiere de Piata Universitatii, pe strada Romulus, in fermecatorul Cartier Evreiesc. Zona este linistita, dar excelent conectata, la 10–15 minute de mers pe jos de Unirii si Universitate, cu acces rapid la restaurante, cafenele si transport public. Cladirea este o vila boutique interbelica, cu structura din beton armat si fără incadrarea in risc seismic, avand cate un singur apartament pe nivel.

Apartamentul se afla la etajul al doilea si a fost recent renovat si mobilat, oferind camere luminoase, ferestre largi si multiple spatii de depozitare, inclusiv o boxa privata de 20 mp la subsol. Dispune de centrala proprie pe gaz, aer conditionat si electrocasnice moderne, fiind ideal pentru cei care cauta un spațiu elegant si generos in centrul orasului.

Perioada minima de inchiriere de 12 luni. Comision 0 pentru chirias.

Nu se permite subinchirierea in regim hotelier, iar in ceea ce priveste animalele de companie, suntem deschisi sa discutam in functie de situatie.

Citește mai mult

  • Tip apartament
    Apartament
  • Compartimentare
    Semidecomandat
  • Număr camere
    5
  • Dormitoare
    3
  • Număr bucătării
    1
  • Număr băi
    2
  • Geam la baie
    Da
  • Etaj
    2
  • Suprafață utilă
    117.42 mp
  • Suprafață construită
    120 mp
  • Suprafață totală
    120 mp
  • Disponibilitate
    Imediat
  • Orientare
    Sud-Vest
  • Confort
    1
  • Stare interior
    Finisat modern
  • Anul finisării
    2025
  • Număr balcoane
    1
  • Imobil
    Bloc de apart.
  • Stadiu construcție
    Finalizată
  • An construcție
    1940
  • Tip construcție
    Cărămidă
  • Număr etaje clădire
    3
  • Număr subsoluri
    1
  • Are demisol
    Da
  • Are pod
    Da

Facilități

Aer condiționat
Apă
Apometre
Aragaz
Boxă la subsol
Bucătărie închisă
Bucătărie mobilată
Bucătărie utilată
Cadă
Calorifere
Canalizare
CATV
Centrală proprie
Contor electric
Contor gaz
Curent
Curte comună
Dressing
Faianță
Ferestre PVC
Frigider
Gaz
Gresie
Hotă
Iluminat stradal
Internet
Mașină de spălat rufe
Mijloace de transport în comun
Mobilat complet
Parchet
Străzi asfaltate
Telefon
TV
Ușă intrare lemn
Uși interior lemn
Vedere spre oraș
Vopsea lavabilă
WC Serviciu
Valentina Radulescu - Zoom City
Valentina Radulescu
REALTOR, Specialist in Reprezentarea Vanzatorului și a Cumparatorului

0724016313


Solicită chiar acum o vizionare
Telefon
Sună acum Solicită vizionare
Necesare:

Site-ul nu poate funcționa corect fără aceste cookie-uri. Vezi cookie-urile

Statistică:

Strângem statistici anonime despre voi, vizitatorii unici, pentru a vă îmbunătăți experiența dumneavoastră. Vezi cookie-urile

Marketing:

Pentru a ne promova mai eficient serviciile noastre, folosim cookies pentru a vă identifica și a vă oferi proprietăți și servicii personalizate. Vezi cookie-urile

Acest site folosește cookies, află detalii. Alege ce tipuri de cookies dorești să permitem: